New Homes for Sale
Articles
Professionals
Log in
Sign up
Photos 17
Videos 0
Map
Interactive floor plan 0
Virtual 0
Stuart Plan
By
Toll Brothers
|
Windsor Grove
Community
Available homes
Get updates
Save
Request info
Request info
Community
Available homes
Request info
Get updates
Save
Request info
Windsor Grove
Get updates
Request info
Sold
Sold
3
2
1
From 2,913
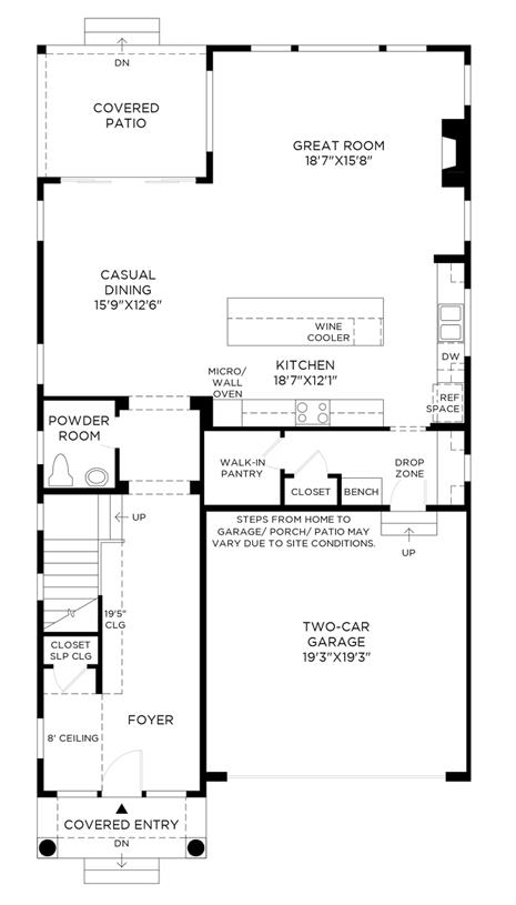
Stuart Plan details
Address:
Sammamish, WA 98075
Plan type:
Detached Two+ Story
Beds:
3
Full baths:
2
Half baths:
1
SqFt:
From 2,913
Ownership:
Fee simple
Interior size:
From 2,913 SqFt
Lot pricing included:
Yes
Stuart Plan is now sold.