




































































Get additional information including price lists and floor plans.
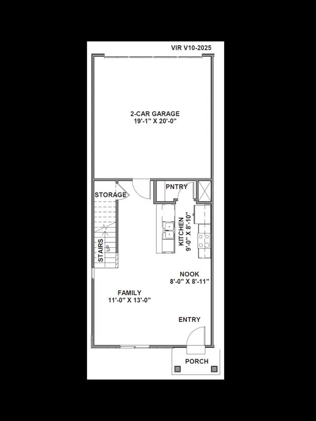
D.R. Hortons Dalton floorplan in our Salem, Utah, Viridian community boasts the efficient space of a two-story townhome and the privacy, light, and spaciousness of a 3 bed, 2 bath single family home. The floorplans thoughtful placement of a two-car garage at the rear and three head-turning exterior options allow you to put your best front forward. Get cozy in one of three spacious upstairs bedrooms that boast recessed lighting, ample closet space, bright windows, and plush carpet. The large primary bedroomwith a full en suite bathroom and window-lit walk-in closetoffer enough space and privacy to take the pressure off getting ready on busy mornings. At the other end of the hall, youll find two additional bedrooms, one of which includes a walk-in closet of its own. The upstairs also features a well-appointed shared bathroom with a tub and vanity that includes pl...
Stay informed with Livabl updates on new community details and available inventory.