
























































































Get additional information including price lists and floor plans.
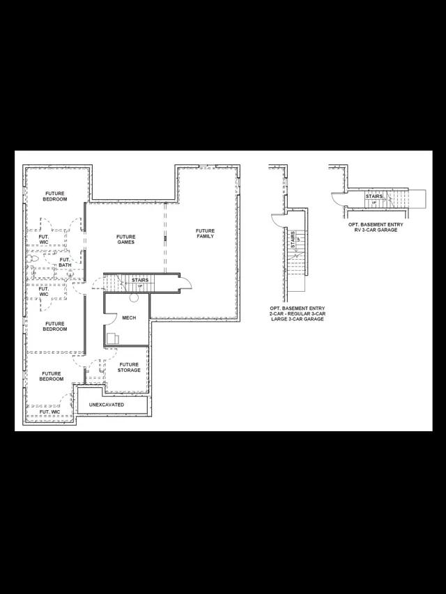
Find yourself at home in Oakley, a showpiece single-story floorplan with three timeless exterior options in our Salem, Utah, Viridian community. With 3 beds and 2.5 baths, each room offers more than enough space to live, relax, and entertain in style and comfort. Plus, the huge unfinished basement gives you room to grow. It can easily make up to 3 additional bedrooms, with pre-plumbing to add a bathroom. You can design the space to also include your choice of: living room/kitchen space, plus game room, theatre room, or home gym. Entering from your garage, the entryway features a mudroom with a built-in organization bench complete with hooks and cubbies for storage, plus a large laundry room and convenient powder room. From there, it opens out to a roomy chefs kitchen with a walk-in pantry, an oversized quartz-topped island for additional seating or space fo...
Stay informed with Livabl updates on new community details and available inventory.