






































































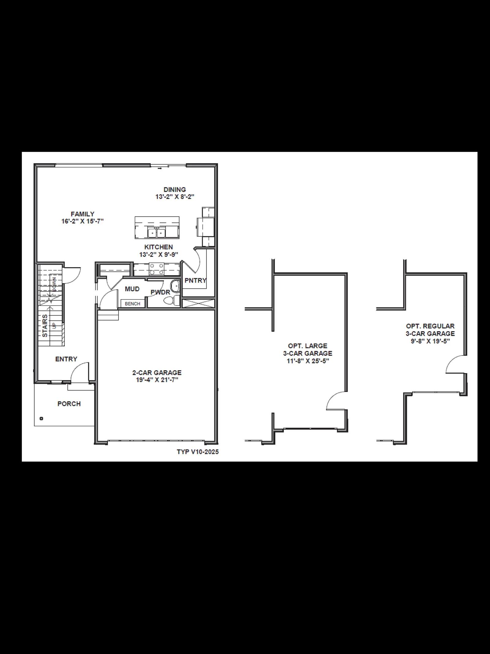
The 2-story Beechwood floorplan in D.R. Hortons Viridian community in Salem, Utah, is thoughtfully designed space that can grow with you. Three timeless exteriors invite you to make this beautiful home all your own. From the two-car garage, youll enter a mudroom with an adjoining powder room. From there, the space opens into a bright open concept living space whose laminate wood flooring, recessed lighting, and large windows make for a clean, modern canvas for your personal style. In the kitchen, stainless steel appliances, a large quartz breakfast bar, and a seriously spacious pantry make food prep a breeze. Upstairs are four bedrooms: the primary bedroom and three additional rooms, plus a laundry room and shared full bath. The primary bedroom boasts a well-appointed en-suite bathroom with a private water closet and spacious walk-in closet with built-in organi...
Stay informed with Livabl updates on new community details and available inventory.