











































Get additional information including price lists and floor plans.
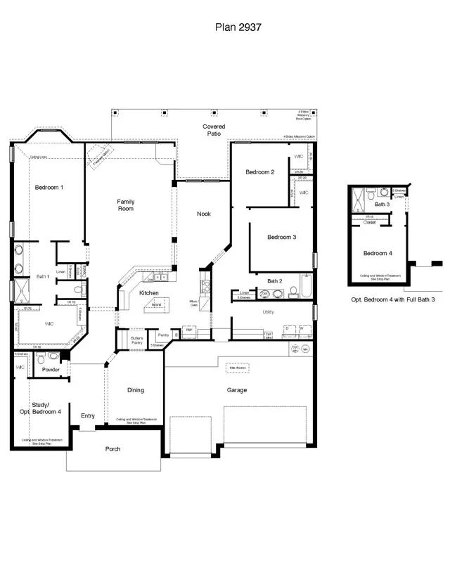
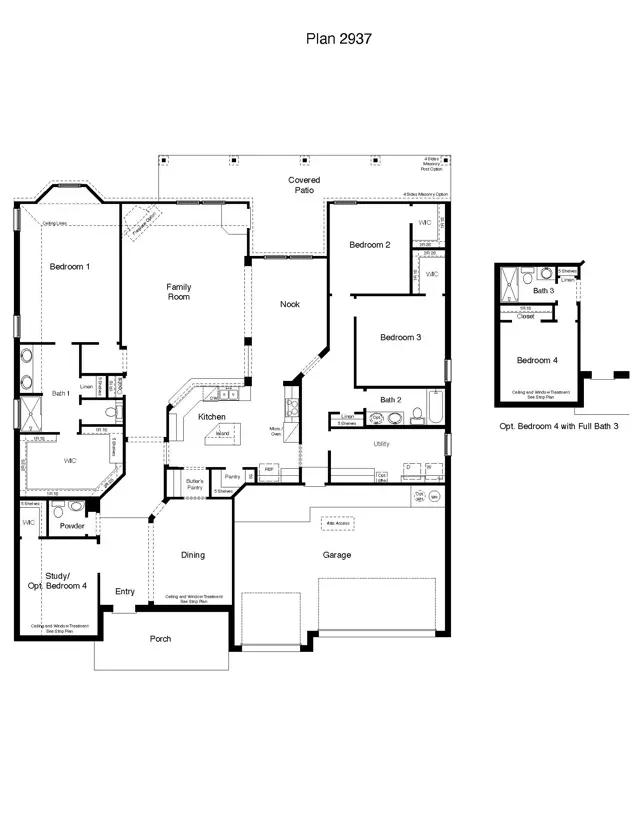
Step into the Waverly at Sterling Meadows, one of our floorplans featuring a seamless blend of modern design and functionality in Salado, TX. This floorplan has 3-4 bedrooms, 2.5 bathrooms, and a 3-car garage. Youll also enjoy a large backyard with a covered patio and all of its 2,887 approximate square feet of comfortable living. Walking up the porch, you will step into the entry way and be greeted by the study with the option of a secondary room, the dining room, and a powder room for your guests. Continuing down the hall you will come to the kitchen and family room, through the family room is the primary bedroom. Escape from a long day to this primary bedroom and enjoy the attached bathroom with the double vanity sink and walk-in shower and the spacious walk-in closet. Enjoy the kitchen that is separated from the family room by a breakfast bar, with its i...
Stay informed with Livabl updates on new community details and available inventory.