hero-image-0
hero-image-1
hero-image-2
hero-image-3

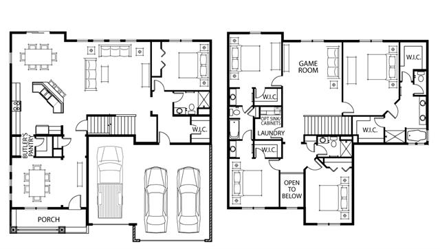
The Whitney Plan

By

D.R. Horton

   |   

Morgendal Single Family Homes

Morgendal Single Family Homes
Sold
Sold
5
4
From 3,400
unit-banner-imageunit-banner-imageunit-banner-image
The Whitney Plan details
The Whitney Plan is now sold.
Check out available nearby plans below.