

























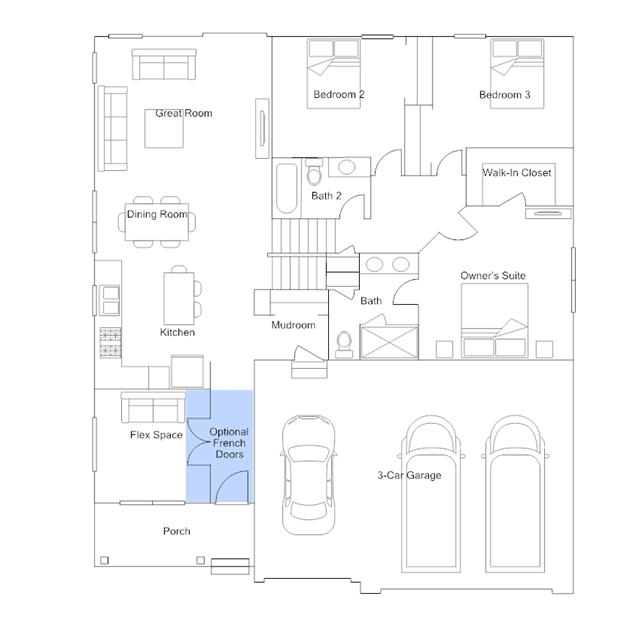
This new two-story home is designed for comfort and convenience, with a lower level for versatility. Featured on the first floor are a family room and dining room with vaulted ceilings, a kitchen with a center island and a flex room with endless possibilities. Upstairs are two secondary bedrooms and a spacious owners suite