























































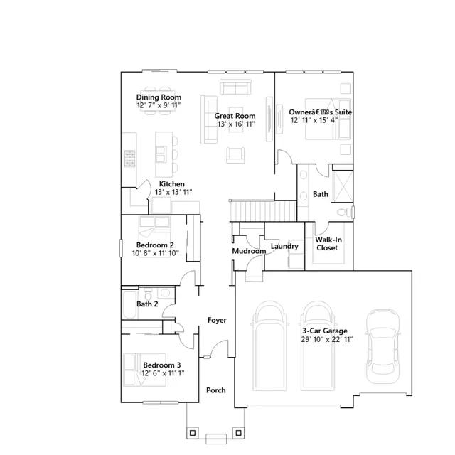
At the heart of this new single-story home is a modern, open-plan layout shared among a well-equipped kitchen, a dining room for memorable meals and a Great Room designed for entertainment. In a rear corner is the owners suite with an attached bathroom, while the remaining bedrooms frame the foyer. At select homesites is an optional finished basement for additional living space.
Stay informed with Livabl updates on new community details and available inventory.