hero-image-0
hero-image-1

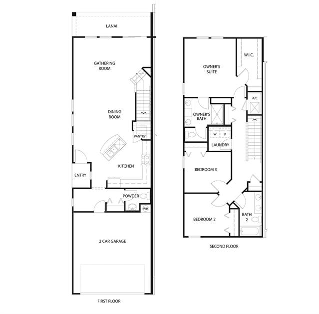
284 Servia Drive

Palisades at Durbin Crossing
Sold
Sold
3
2
1
1,795
284 Servia Drive details
unit-banner-image
unit-banner-image
unit-banner-image
284 Servia Drive is now sold.
Check out available nearby townhomes below.