























Get additional information including price lists and floor plans.
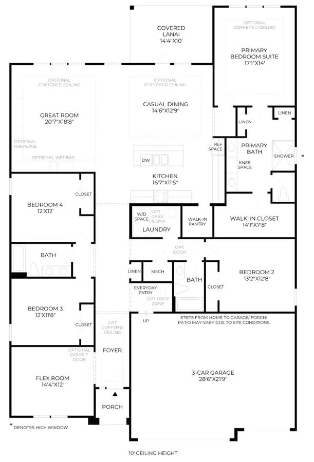
Deluxe family living. The Robin's welcoming covered porch and inviting foyer hallway flow into the expansive great room and casual dining area, with views to the desirable covered lanai beyond. The well-equipped gourmet kitchen is enhanced by a large center island with breakfast bar, plenty of counter and cabinet space, and generous walk-in pantry. The private primary bedroom suite is highlighted by a king-size walk-in closet and spa-like primary bath with dual-sink vanity, large luxe shower, linen storage, and private water closet. Secondary bedrooms feature roomy closets and two shared hall baths, one with dual-sink vanity. Additional highlights include a versatile flex room at front of home, centrally located laundry, and additional storage.
Stay informed with Livabl updates on new community details and available inventory.