
















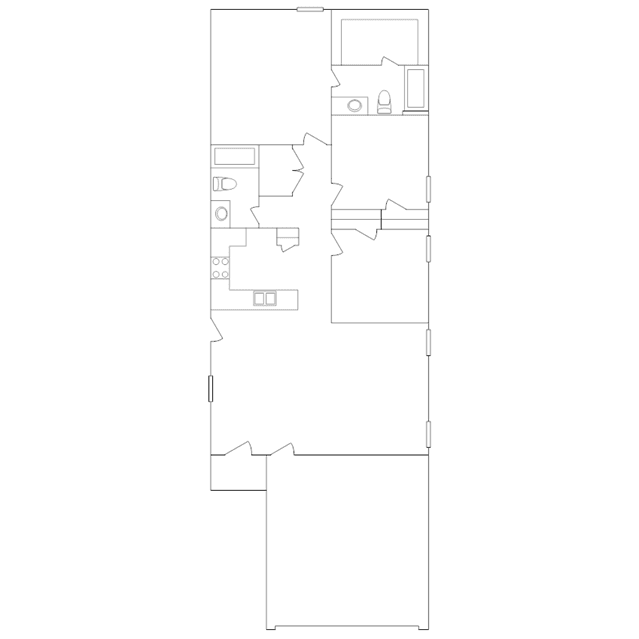
This single-story home has a convenient layout that works well for families with young children. Two bedrooms are attached to the living area, beside the owners suite which has a full bathroom and walk-in closet. In the front of the home is the open living area, which includes a comfortable family room, dining area and kitchen.
Stay informed with Livabl updates on new community details and available inventory.