










































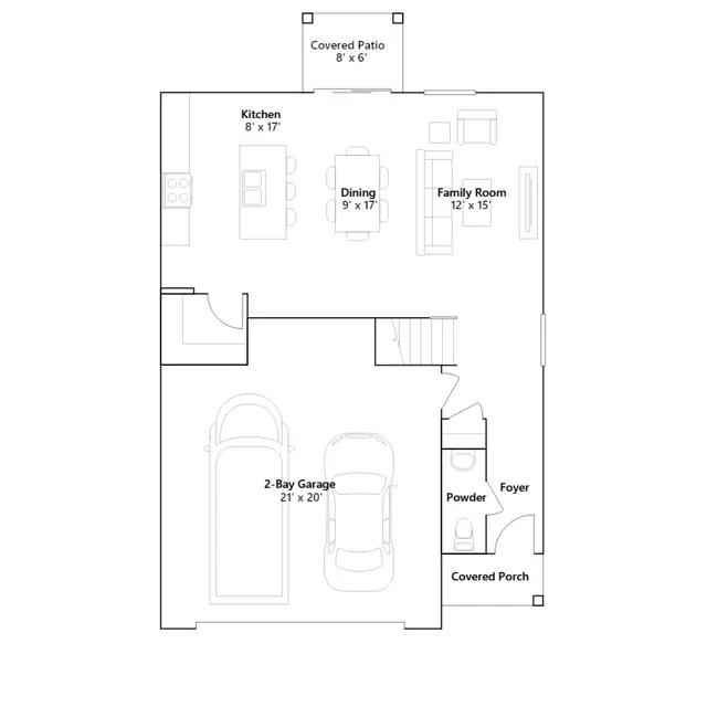
This new two-story home is host to a spacious and flexible open-concept layout on the first floor that blends the kitchen, dining area and family room for seamless transitions and everyday multitasking. On the second level, a versatile loft provides a convenient shared living area easily accessible from three bedrooms and a lavish owners suite with a full bathroom and walk-in closet.
Stay informed with Livabl updates on new community details and available inventory.