



































































Get additional information including price lists and floor plans.
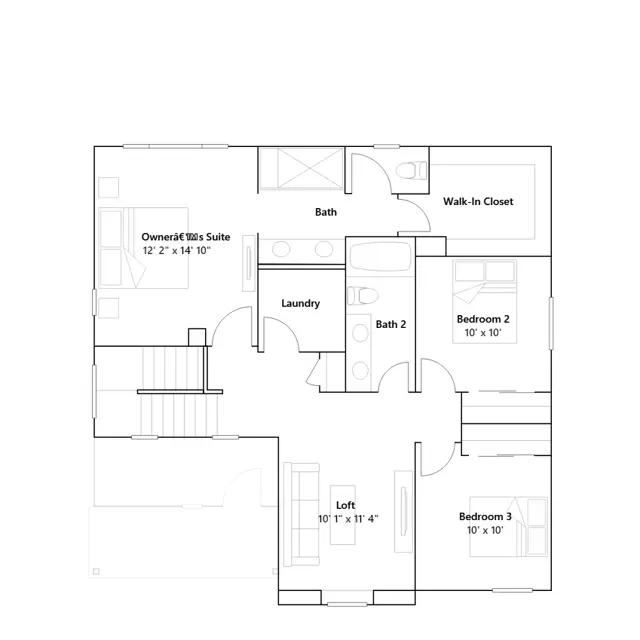
This new two-story home features a modern and spacious layout. On the first floor, an open-concept floorplan boasts convenient outdoor access with a covered patio. Three bedrooms surround a versatile loft on the second floor, including the owners suite with an en-suite bathroom and walk-in closet.
Stay informed with Livabl updates on new community details and available inventory.