






































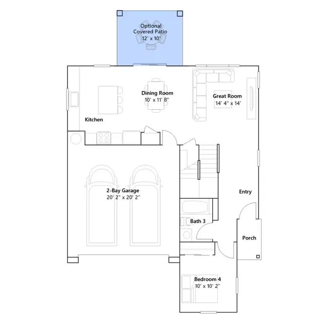
This new two-story home features an expansive layout with room to grow. Off the entry is a convenient bedroom and full bathroom, leading to an open-concept floorplan consisting of the kitchen, dining room and Great Room. Three additional bedrooms share a footprint with a versatile loft on the second floor, including the luxe owners suite with a spa-inspired bathroom and generous walk-in closet.
Stay informed with Livabl updates on new community details and available inventory.