
















































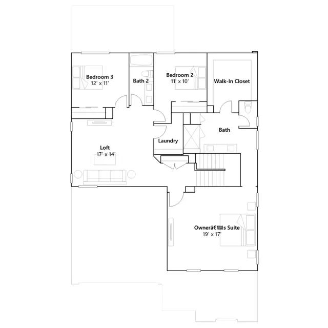
This new two-story Next Gen home is designed for multigenerational families, featuring a private suite on the first floor with a separate entrance, living area, kitchenette, bedroom and bathroom. The main home features a spacious and flexible open-concept floorplan and covered patio, ideal for everyday entertaining and leisure. An inviting loft can be found on the second floor, near two bedrooms and a luxurious owners suite with a spa-inspired bathroom and walk-in closet.
Stay informed with Livabl updates on new community details and available inventory.