















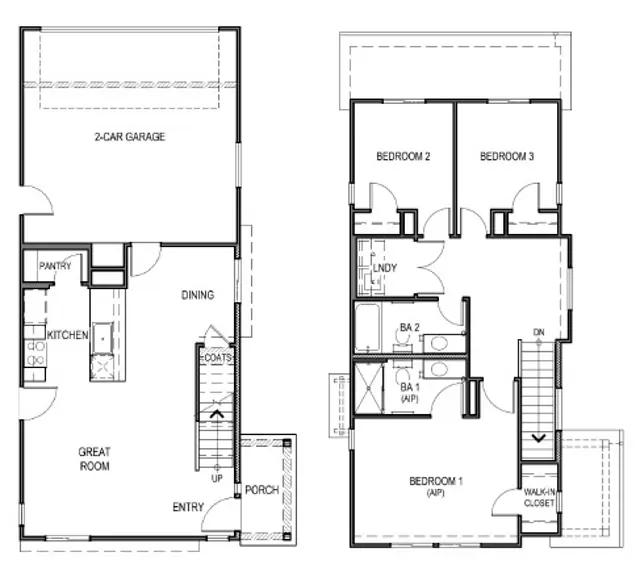
Explore the charm of Plan 1306, an inviting choice for new home buyers seeking comfort and modern amenities. These 1,306 square foot home features 3 bedrooms and 2 bathrooms, ensuring convenience and space for all. The first floor of this home invites you through the entryway, which opens seamlessly into the great room. At the heart of the home, the modern kitchen boasts quartz countertops and stainless-steel appliances and elegant Shaker style cabinets. Just off the kitchen is the dining room, which is perfect for shared meals and special occasions. Additionally, the walk-in pantry ensures ample storage for all your culinary essentials. Traveling upstairs you will find three spacious bedrooms and a full bathroom. The primary bedroom suite includes a spa-inspired bathroom with quartz countertops, generous oversized shower and walk-in closet. Conveniently sit...
Stay informed with Livabl updates on new community details and available inventory.