




























Get additional information including price lists and floor plans.
Images coming soon
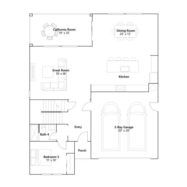
This new two-story home features a modern and spacious floorplan. A convenient bedroom and full bathroom are located off the entry, leading to an inviting open layout that combines the kitchen, dining room and Great Room. Upstairs, four additional bedrooms surround a versatile loft, including the lavish owners suite.
Stay informed with Livabl updates on new community details and available inventory.