






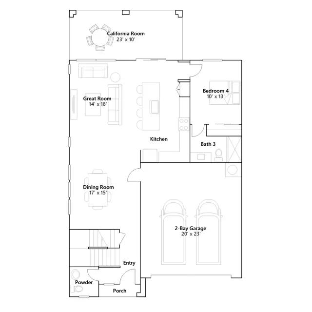
This new two-story home features a modern layout with room to grow. On the first floor, an open-concept floorplan boasts outdoor access via the California Room, with a convenient bedroom tucked away to the side of the home. Upstairs, a versatile loft shares a footprint with three additional bedrooms, including the luxurious owners suite.
Stay informed with Livabl updates on new community details and available inventory.