































































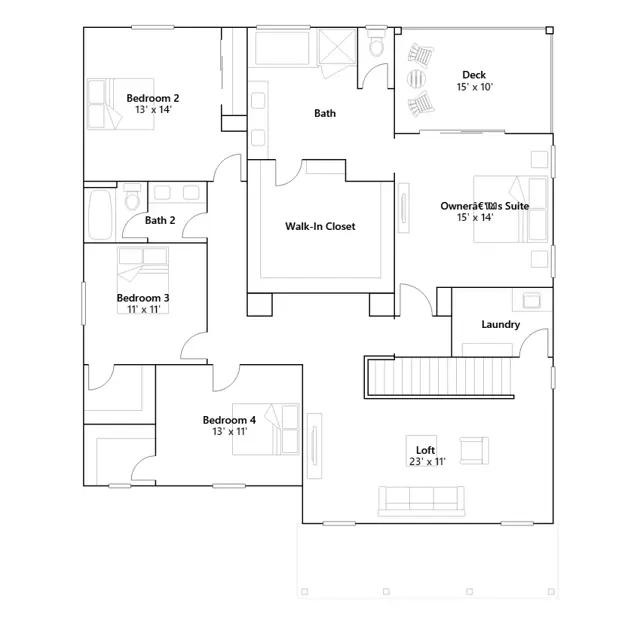
This new two-story home is designed with modern lifestyles in mind. The first floor features an inviting open floorplan shared between the spacious Great Room, a dining room and modern kitchen, with convenient access to a patio for open-air parties. A private bedroom is ideal for overnight guests. On the second floor is a versatile loft space easily accessible from four additional bedrooms, including the luxurious owners suite with a full bathroom and walk-in closet.
Stay informed with Livabl updates on new community details and available inventory.