








































Get additional information including price lists and floor plans.
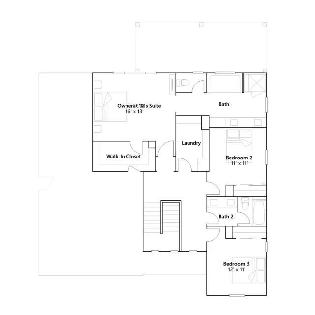
This two-story home is ideal for entertaining. The first floor has an open layout among the Great Room, dining room and kitchen for seamless transitions, accessing a California Room for starlit celebrations. The upstairs bedrooms, including the owners suite with a private deck, provide restful nights following the festivities.
Stay informed with Livabl updates on new community details and available inventory.