














Get additional information including price lists and floor plans.
Images coming soon
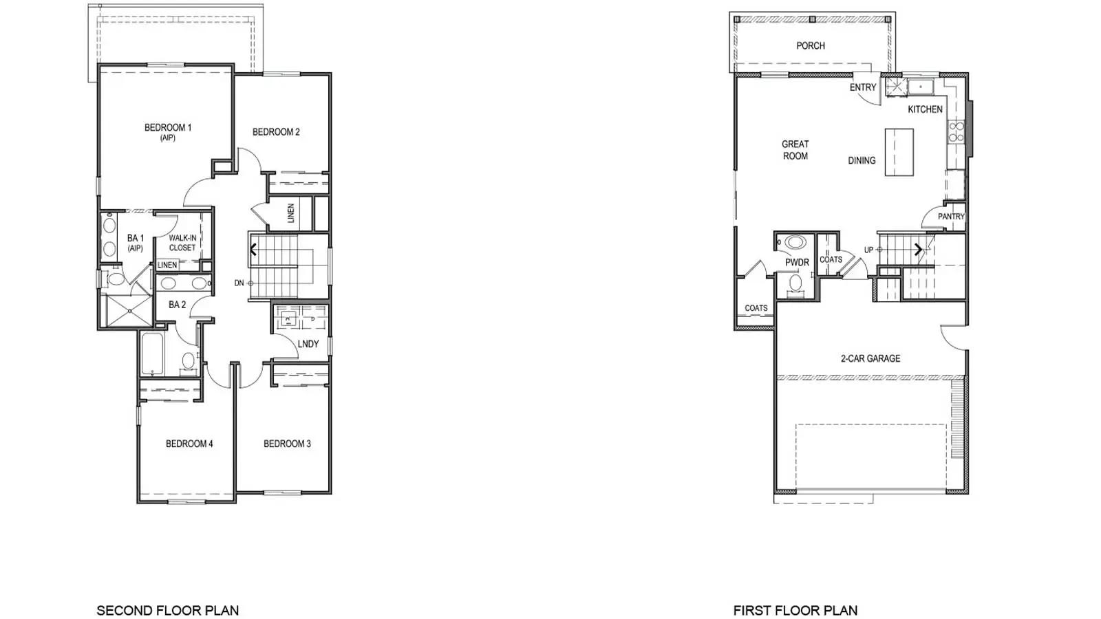
Explore the exquisite features of Plan 1619, a dream home perfectly designed for comfort and modern living. This spacious 1,619 square foot residence boasts 4 bedrooms, 2.5 bathrooms, and a 2-car garage across two well-appointed stories. The first floor of this home invites you through the entryway, which opens seamlessly into the great room. At the heart of the home, the modern kitchen boasts quartz countertops and stainless-steel appliances and elegant Shaker style cabinets. Just off the kitchen is the dining room, which is perfect for shared meals and special occasions. Additionally, the walk-in pantry ensures ample storage for all your culinary essentials. A coat closet and powder room are conveniently located on the first floor. Traveling upstairs you will find four spacious bedrooms and a full bathroom. The primary bedroom suite includes a spa inspired ...
Stay informed with Livabl updates on new community details and available inventory.