hero-image-0
hero-image-1
hero-image-2
hero-image-3
hero-image-4
hero-image-5
hero-image-6
hero-image-7
hero-image-8
hero-image-9
hero-image-10

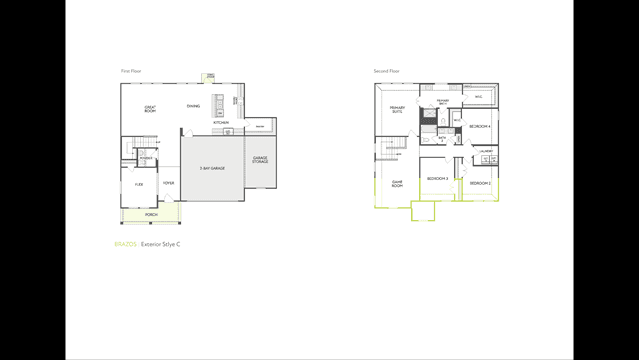
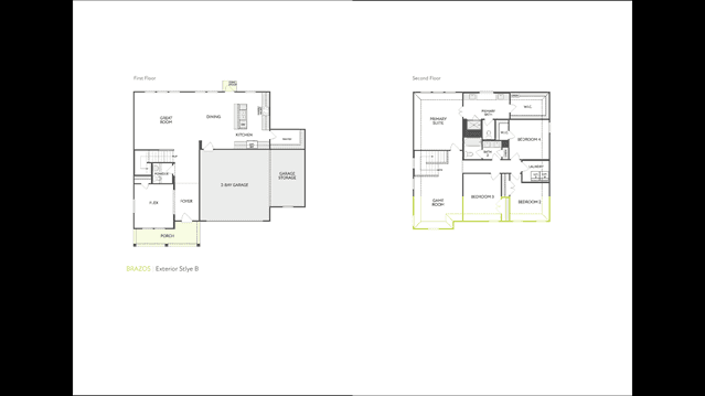
Brazos Plan

By

TRI Pointe Homes

   |   

Waterscape

Waterscape
Sold
Sold
2
4
2
1
From 2,530
Brazos Plan details
Brazos Plan is now sold.
Check out available nearby plans below.

Interested? Receive updates

Stay informed with Livabl updates on new community details and available inventory.