hero-image-0
hero-image-1
hero-image-2
hero-image-3

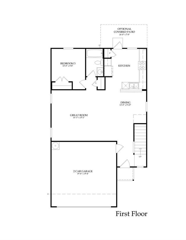
Lincoln Plan

Enclave at Chandler Creek
Sold
Sold
3
3
From 2,033
Lincoln Plan details
Lincoln Plan is now sold.
Check out available nearby plans below.