


















Get additional information including price lists and floor plans.
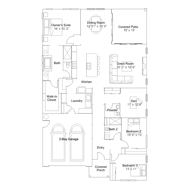
The largest plan offered in the collection, this single-story home provides ample flexibility featuring two secondary bedrooms and a den in the front of the home, and a cohesive layout that joins the kitchen, Great Room and dining room for maximum convenience. Privately situated, the owners suite boasts an en-suite bathroom and a generous walk-in closet, completing the home.
Stay informed with Livabl updates on new community details and available inventory.