





























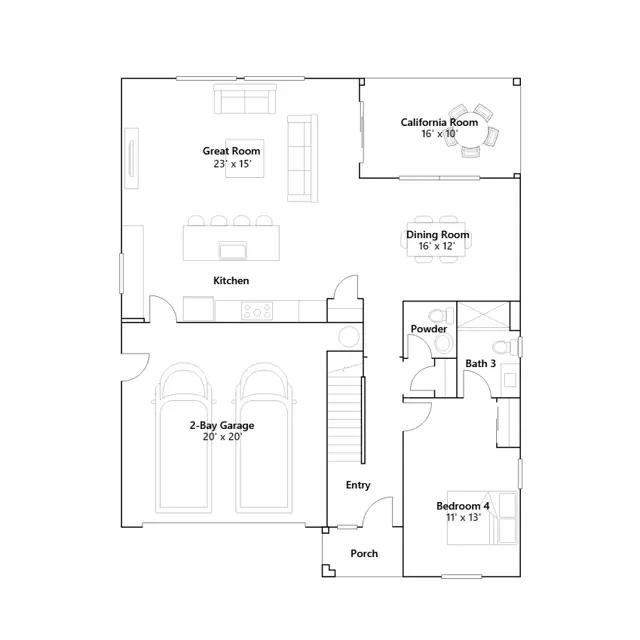
This new two-story home is designed for ease and comfort. The first-floor Great Room and dining room wrap around the California Room, which is perfect for sunrise coffee and sunset suppers. A secluded secondary bedroom is ideal for a family member who wants added privacy. The second floor hosts a loft that provides access to a deck for outdoor enjoyment and three bedrooms including the spacious owners suite.
Stay informed with Livabl updates on new community details and available inventory.