

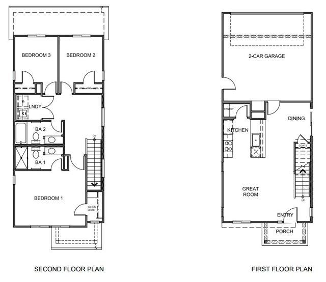
Discover the charm and functionality of Plan 1296, designed perfectly for new home buyers seeking comfort and modern amenities. This 2-story, 1,296 sq. ft. home features 3 bedrooms and 2 bathrooms, ideal for a new home buyer. The layout includes a convenient upstairs laundry room and boasts a spacious walk-in closet and pantry, ensuring ample storage space. The kitchen showcases Whirlpool stainless steel appliances including a 30" freestanding electric range, microwave/hood combo, and built-in dishwasher. Bathrooms are elegantly appointed with chrome fixtures and granite countertops matching the kitchen, complemented by Shaker style cabinets in either white or gray. The home is crafted with squared drywall corners, Deako switches, and LED ceiling lights throughout. For added comfort and efficiency, amenities include a Honeywell programmable thermostat...