

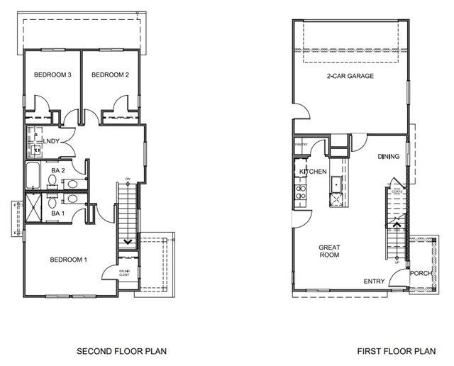
Introducing Plan 1306, an exceptional 2-story home designed with your comfort in mind. This thoughtfully crafted residence offers 1,306 sq. ft. of living space, featuring 3 bedrooms, 2 bathrooms, and a spacious 2-car garage. Enjoy the convenience of an upstairs laundry room and a walk-in closet in the primary bedroom, providing ample storage and functionality. The home comes equipped with top-of-the-line Whirlpool stainless-steel appliances, including a freestanding electric range, microwave/hood combo, and built-in dishwasher. Experience luxury with granite countertops in the kitchen and bathrooms, complemented by elegant shaker-style cabinets available in your choice of white or gray. The bathrooms feature chrome fixtures and accessories, with Bath 1 offering a chrome-framed shower enclosure and Bath 2 featuring a fiberglass tub/shower surround. Additional...