











































































Get additional information including price lists and floor plans.
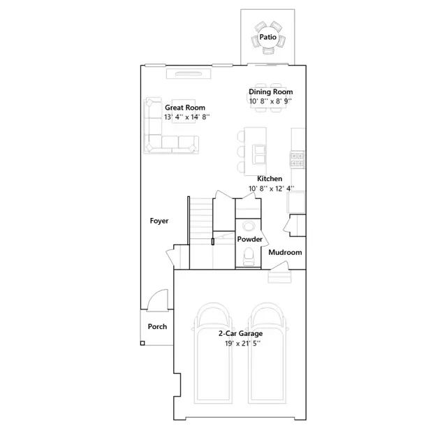
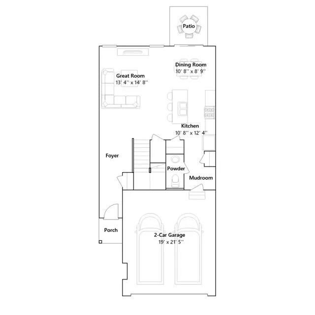
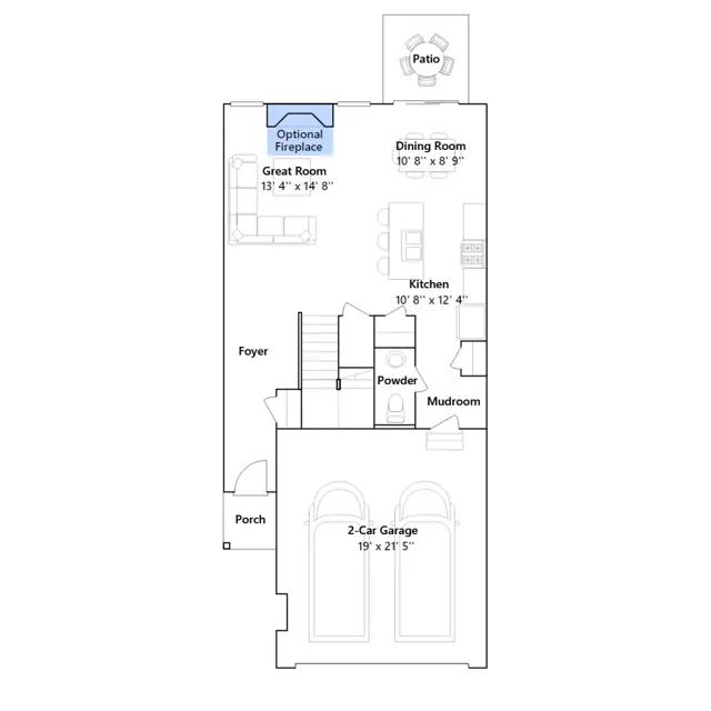
This new two-story townhome design combines comfort and convenience. The main level features a family room for shared moments, a dining room for memorable meals and a kitchen for adventurous cooks. The upper level offers three restful bedrooms including the generously sized owners suite.
Stay informed with Livabl updates on new community details and available inventory.