









































































































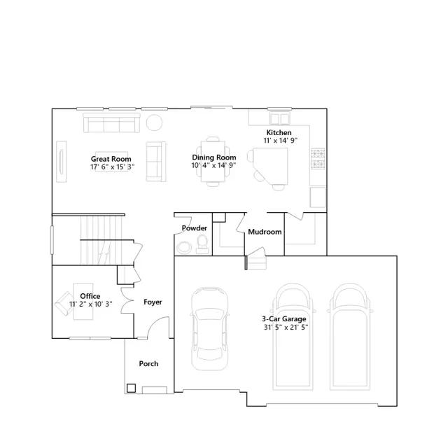
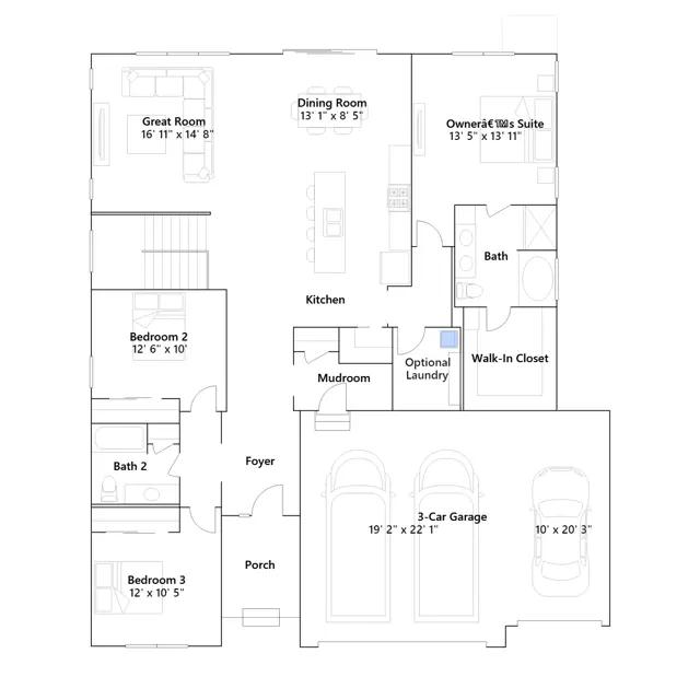
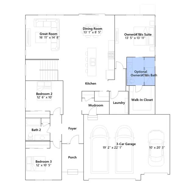
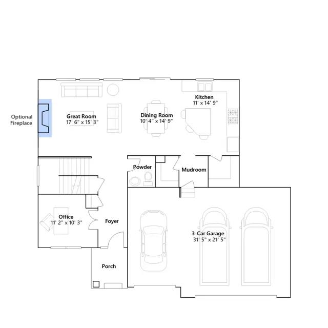
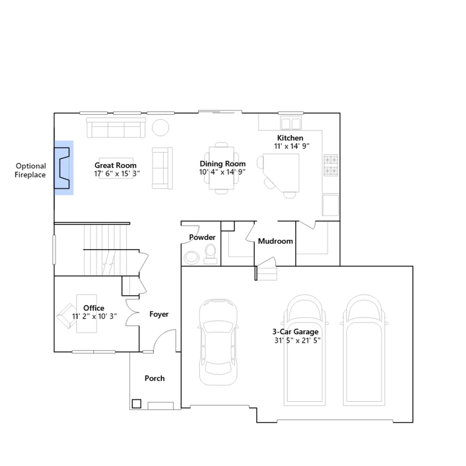
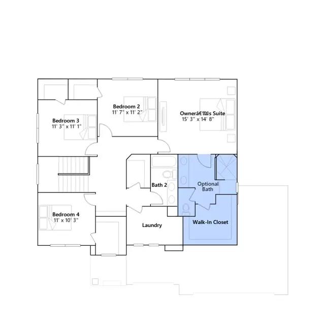
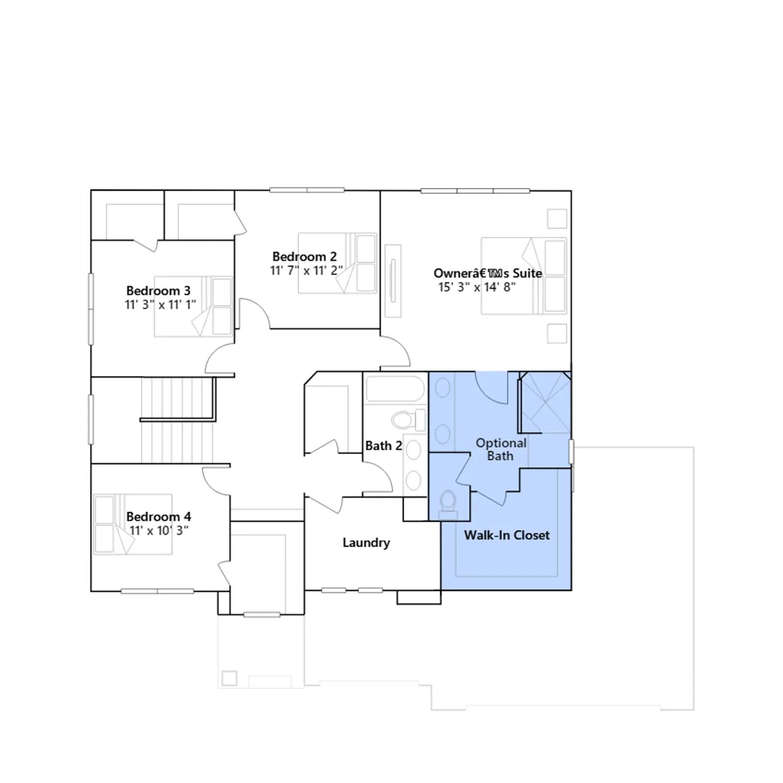
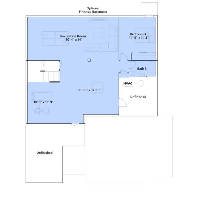
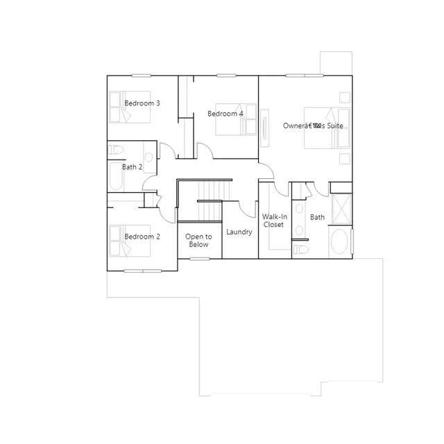
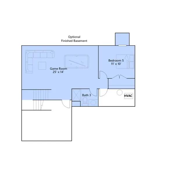
This new two-story home features a family-friendly design with a lower level thats full of possibilities. The rst oor showcases a Great Room, kitchen with a nook, ex room and mudroom with a walk-in closet. Upstairs are a conveniently situated laundry room, three secondary bedrooms and the owners suite, which all have walk-in closets.
Stay informed with Livabl updates on new community details and available inventory.