




















































Get additional information including price lists and floor plans.
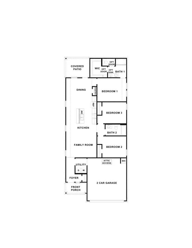
The Brooke is a single-story, 3-bedroom, 2-bathroom home that features approximately 1,391 square feet of living space. This home has an inviting entrance leading to the large family room that opens to the kitchen and dining room. The kitchen features a large breakfast bar and a perfect sized pantry. Our homeowners can enjoy the oversized main bedroom with a large walk-in closet and beautifully designed bathroom. Youll enjoy added security in your new D.R. Horton home with our Home is Connected features. Using one central hub that talks to all the devices in your home, you can control the lights, thermostat and locks, all from your cellular device. With D.R. Horton's simple buying process and ten-year limited warranty, there's no reason to wait! (Prices, plans, dimensions, specifications, features, incentives, and availability are subject to change withou...
Stay informed with Livabl updates on new community details and available inventory.