





























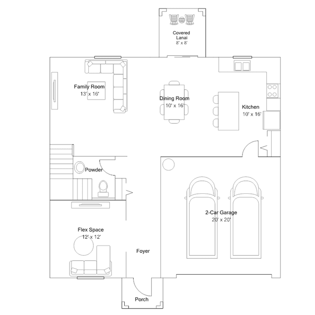
This two-story home is designed for comfortable family living. The first floor opens to a shared space among the living room, dining room and kitchen, with rear patio access for indoor-outdoor living. Nearby, is a multipurpose flex room for various hobbies. A versatile loft and four bedrooms, the largest being the peaceful owners suite, complete the second level.