










































Get additional information including price lists and floor plans.
Images coming soon
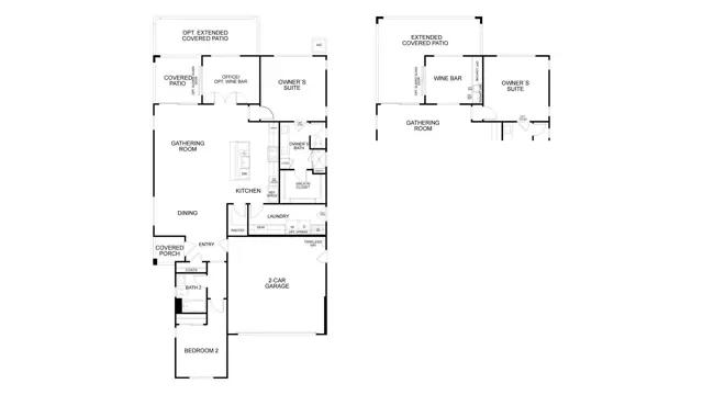
Captivating single-level home in Rio Vista's newest 55+ Active Adult Community! 1,569Sq. Ft. (approx.) of living space, 2 bedrooms, an office, 2 baths, and a 2-car garage! This floor plan has plenty of room to entertain friends and family with a spacious kitchen island overlooking the Gathering Room, an optional wine bar in lieu of the office, and a covered patio to entertain and dine al fresco. This home also includes a large owner's suite with an adjoining private bath, a walk-in closet, and so much more! Please see agent for more details.
Stay informed with Livabl updates on new community details and available inventory.