

























































Get additional information including price lists and floor plans.
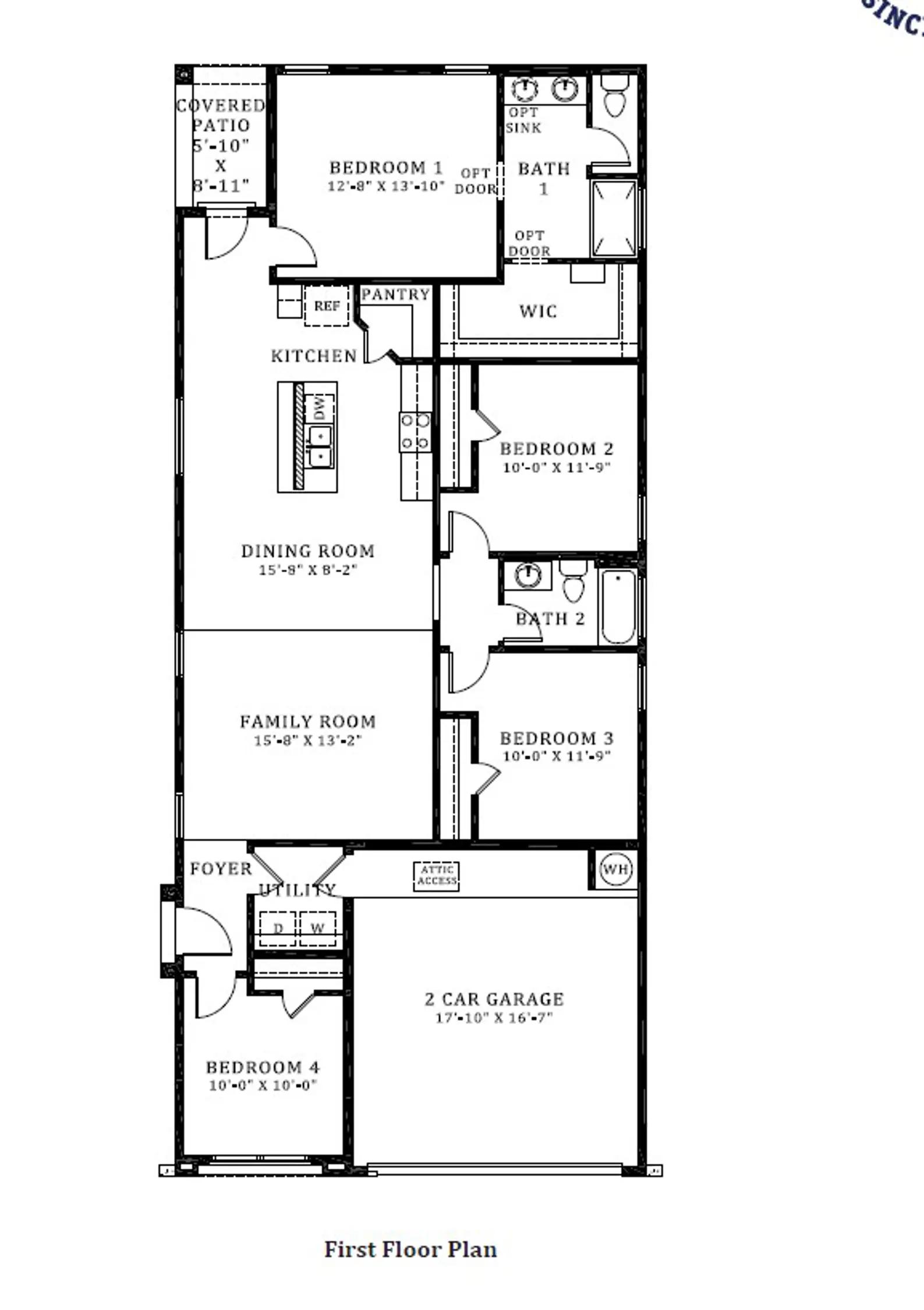
The Sawyer is a single-story new home floorplan offered at Los Diamantes in Rio Rancho, New Mexico, where thoughtful design meets every day ease. This 1,602 square foot home includes 4 bedrooms, 2 bathrooms, and a 2-car garage, offering a balanced and efficient layout. From the outside, the Sawyers varied elevations provide distinctive charm and character, blending with the surrounding landscape. Inside, every inch is optimized for functionality and movement. The open concept living area connects kitchen, dining, and family space, allowing for effortless flow. The kitchen features a spacious kitchen island, decorative tile backsplash, designer cabinetry, a walk in pantry and Whirlpool stainless steel appliancespairing functionality with flair. All bedrooms are conveniently on one level, with the primary suite tucked away for privacy. It includes a walk-in closet ...
Stay informed with Livabl updates on new community details and available inventory.