hero-image-0
hero-image-1
hero-image-2
hero-image-3

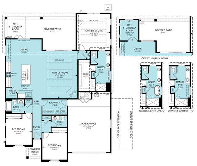
The Cottonwood Plan

Lomas Encantadas 1G Phase 1
For sale
For sale
From $523,990
1
3
2
1
From 2,223
The Cottonwood Plan details

Contact sales center

Get additional information including price lists and floor plans.

Interested? Receive updates

Stay informed with Livabl updates on new community details and available inventory.