hero-image-0
hero-image-1
hero-image-2
hero-image-3
hero-image-4
hero-image-5
hero-image-6
hero-image-7
hero-image-8
hero-image-9
hero-image-10
hero-image-11
hero-image-12
hero-image-13
hero-image-14
hero-image-15
hero-image-16
hero-image-17
hero-image-18
hero-image-19
hero-image-20
hero-image-21
hero-image-22
hero-image-23
hero-image-24
hero-image-25

1210 SPOTFLOWER ST

Sweetgrass at Summers Corner -...
Sold
Sold
4
3
1
3,335
1210 SPOTFLOWER ST details
1210 SPOTFLOWER ST is now sold.
Check out available nearby homes below.

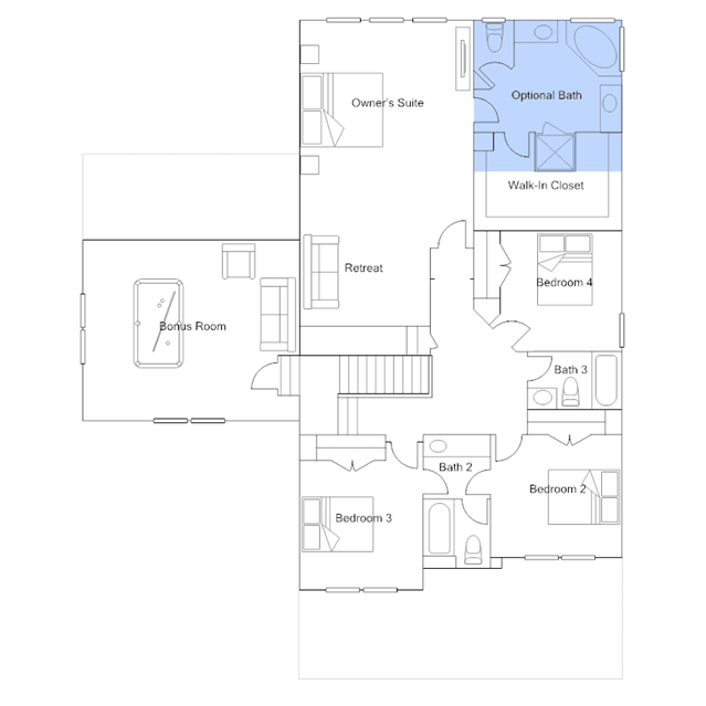
Floor plan

GRAYSON

Sweetgrass at Summers Corner - Coastal Collection

This expansive two-story home features a formal dining room, living room and an open living space with sliding doors that extend to the patio for outdoor living. Upstairs is a spacious bonus room ready to be transformed and three bedrooms. In addition to this is the owners suite with a retreat and full-sized bathroom.

Interested? Receive updates

Stay informed with Livabl updates on new community details and available inventory.