












































































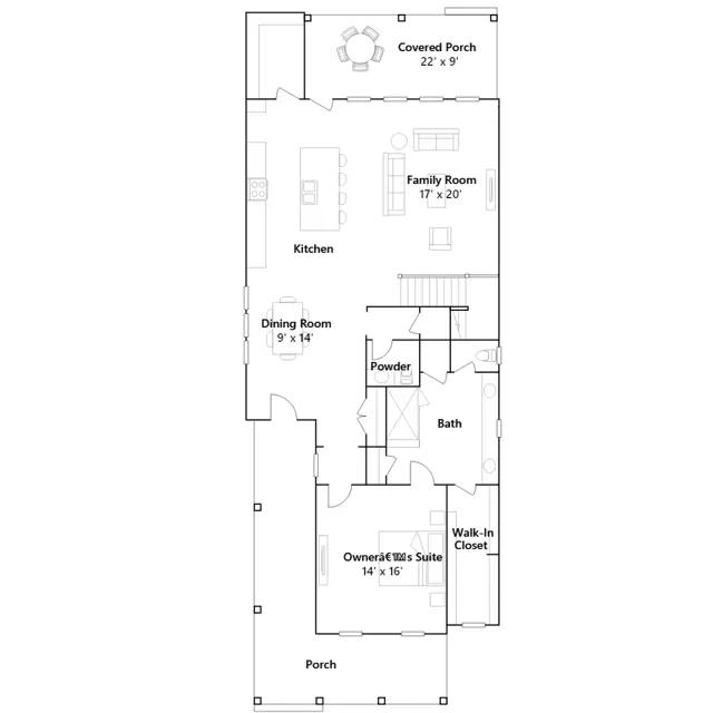
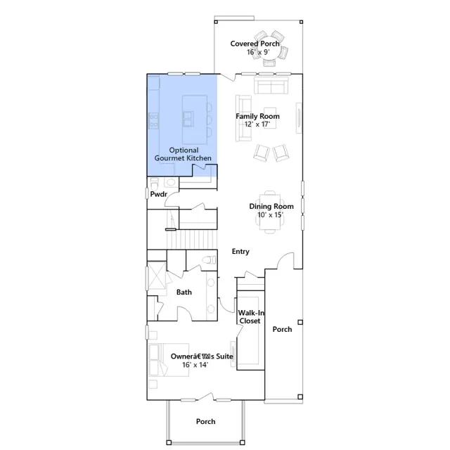
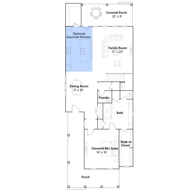
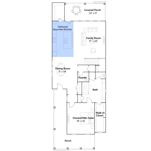
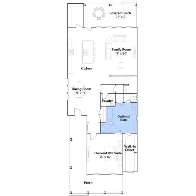
This two-story home is the largest plan in the collection and features a wraparound porch, plus a covered rear porch for outdoor living. On the first floor is an open dining room, kitchen and family room, along with the owners suite. Upstairs is a loft surrounded by four bedrooms. A lower-level two-car garage with extra storage space completes the home.
Stay informed with Livabl updates on new community details and available inventory.