





























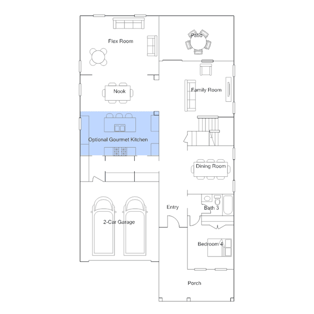
This two-story home is the second largest plan in the collection and features a spacious flex space and upstairs bonus room with endless possibilities. On the first floor is a practical study, a family room with a charming fireplace, an open-concept kitchen and breakfast room, along with a large outdoor patio. Throughout the home is a total of four comfortable bedrooms, including the expansive owners suite with a serene bathroom.
Stay informed with Livabl updates on new community details and available inventory.