





























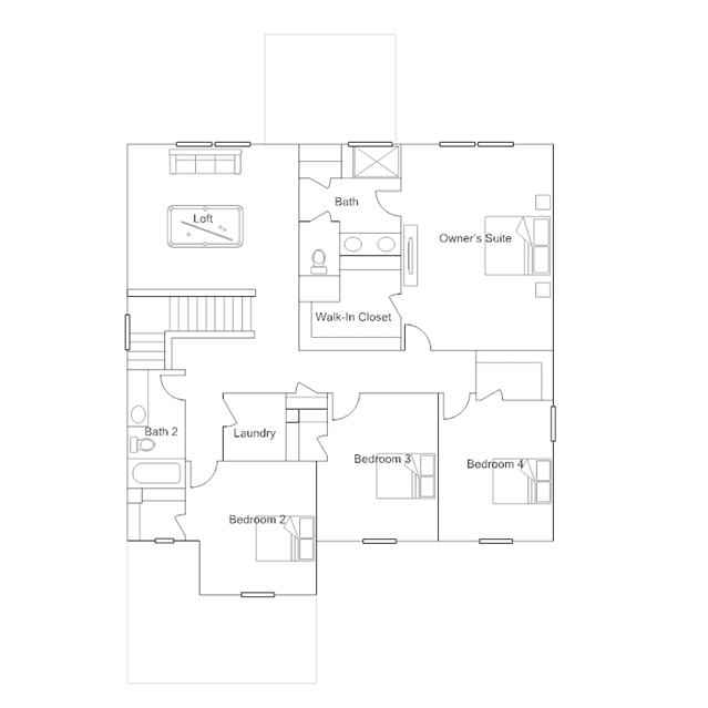
This spacious two-story home features a practical study and an open living area that flows to the outdoor patio on the first floor. It showcases a chef-ready kitchen with a center island, a sunny breakfast room and a spacious family room with a charming fireplace. Upstairs is a loft surrounded by the owners suite with a private full-sized bathroom and three secondary bedrooms.
Stay informed with Livabl updates on new community details and available inventory.