
Get additional information including price lists and floor plans.
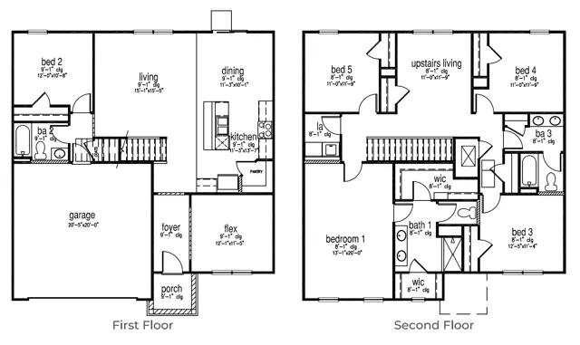
Introducing the Hayden floor plan, a spacious 5-bedroom, 3-bath home offering 2,511 sq. ft. of versatile living space in The Retreat at East Argent, one of Blufftons premier natural gas communities. The first floor features an open-concept layout with a modern kitchen equipped with a natural gas stove, stainless steel appliances, a large center island, and a walk-in pantry. The kitchen flows seamlessly into the dining and living areas, making it perfect for entertaining. A private first-floor guest bedroom with a full bath adds flexibility for visitors or multigenerational living. A dedicated flex room at the front of the home can be used as an office, playroom, or formal dining. Upstairs, the Hayden offers an expansive primary suite with dual walk-in closets and a spacious bathroom. Four additional bedroomsincluding one with its own walk-in closetprovide room fo...
Stay informed with Livabl updates on new community details and available inventory.