




























































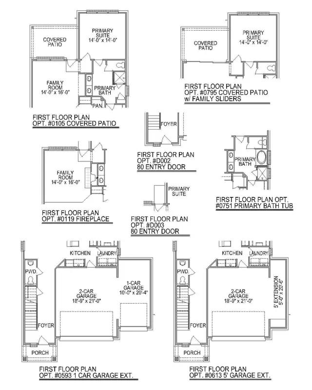
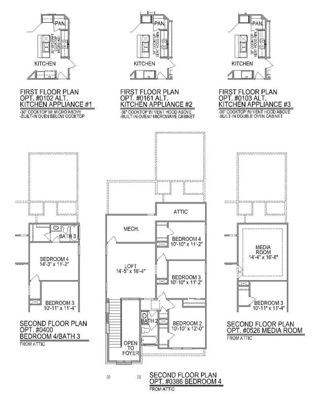
This lovely two-story plan has 3 bedrooms, 2.5 baths and a 2-car garage. It features an open kitchen that overlooks both the casual dining area and the family room. The downstairs primary suite features a large walk-in closet off of the primary bath. While heading upstairs you are welcomed by a large loft space that can be used for an office or game room, as well as two secondary bedrooms. Options: covered outdoor living with great room sliders, 5' garage extension, 1 bay garage extension, media room, and bedroom 4/ bath 3.
Stay informed with Livabl updates on new community details and available inventory.