


















Get additional information including price lists and floor plans.
Images coming soon
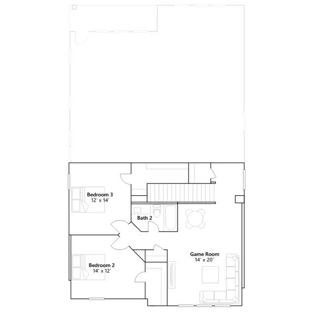
This two-story home has a classic layout for families with the owners suite on one floor and the other bedrooms on another. Beside the front door is a study, while down the hall is the open concept living area with a back patio attached. The owners suite is tucked into a corner of the first floor with a full bedroom and walk-in closet. Upstairs are two additional bedrooms and a versatile game room.
Stay informed with Livabl updates on new community details and available inventory.