















































































Get additional information including price lists and floor plans.
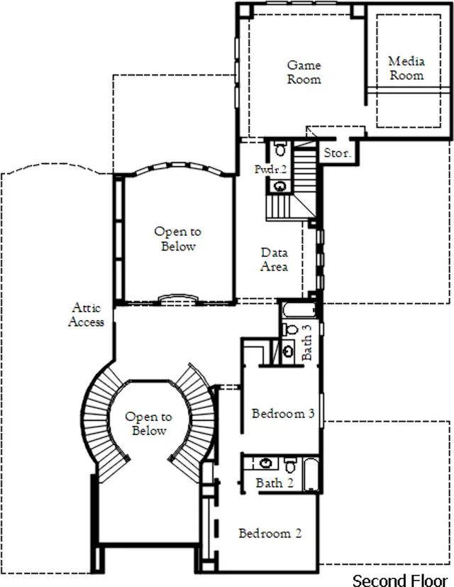
The Ravenna floor plan is a stunning two-story home designed for spacious living and seamless entertaining. Featuring five bedrooms and four and a half bathrooms, this layout offers the perfect blend of comfort and functionality. The open-concept living area flows effortlessly into the gourmet kitchen and dining space, making it ideal for gatherings. A luxurious primary suite provides a private retreat, while additional bedrooms and a versatile loft upstairs ensure ample space for everyone. With a three-car garage and thoughtful design details throughout, the Ravenna is a home that truly stands out.
Stay informed with Livabl updates on new community details and available inventory.