hero-image-0

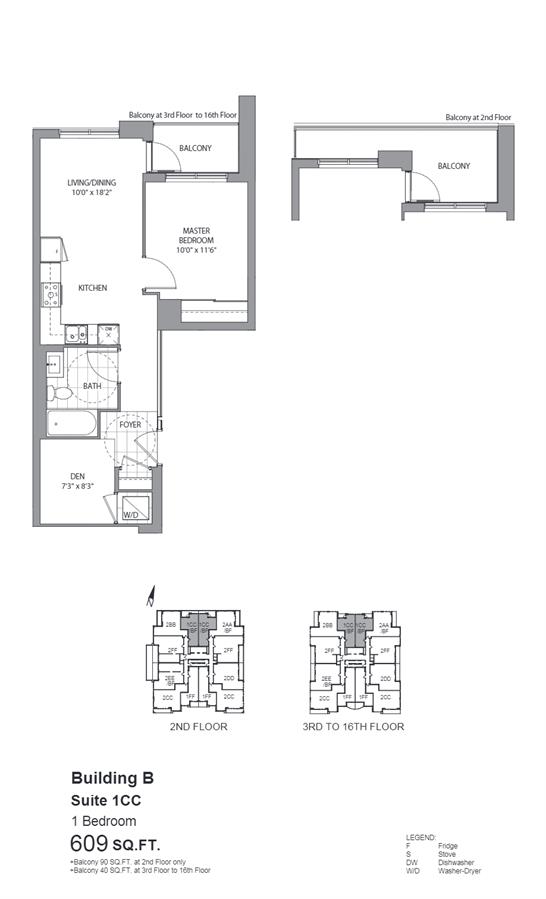
B/1CC-BF Plan

Valleymede Towers
Sold
Sold
1
1
1
From 609
unit-banner-imageunit-banner-imageunit-banner-image
B/1CC-BF Plan details
B/1CC-BF Plan is now sold.
Check out available nearby plans below.