hero-image-0

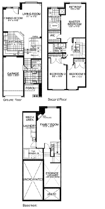
Jade Plan

Roxborough by Minto
Sold
Sold
3
From 1,789
unit-banner-imageunit-banner-imageunit-banner-image
Jade Plan details
Jade Plan is now sold.
Check out available nearby plans below.