hero-image-0
hero-image-1

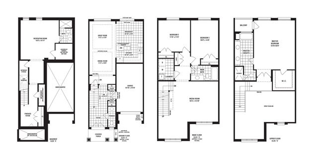
Grovewood C Plan

Richmond Green
Not Available
Not available
Pricing unavailable
3
3
1
1
From 2,951
unit-banner-imageunit-banner-imageunit-banner-image
Grovewood C Plan details

Contact sales center

Get additional information including price lists and floor plans.

Interested? Receive updates

Stay informed with Livabl updates on new community details and available inventory.