hero-image-0
hero-image-1
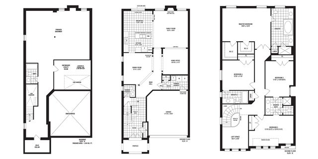
Richmond Green
Sold
Sold
4
4
1
3,989
Lot 19 details
unit-banner-image
unit-banner-image
unit-banner-image
Lot 19 is now sold.
Check out available nearby homes below.

Interested? Receive updates

Stay informed with Livabl updates on new community details and available inventory.