hero-image-0
hero-image-1

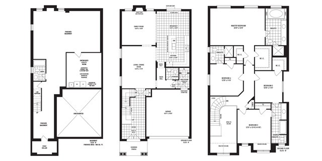
Horner A Plan

Richmond Green
Not Available
Not available
Pricing unavailable
4
4
1
From 3,668
unit-banner-imageunit-banner-imageunit-banner-image
Horner A Plan details

Contact sales center

Get additional information including price lists and floor plans.

Interested? Receive updates

Stay informed with Livabl updates on new community details and available inventory.