40-03 Elev. A
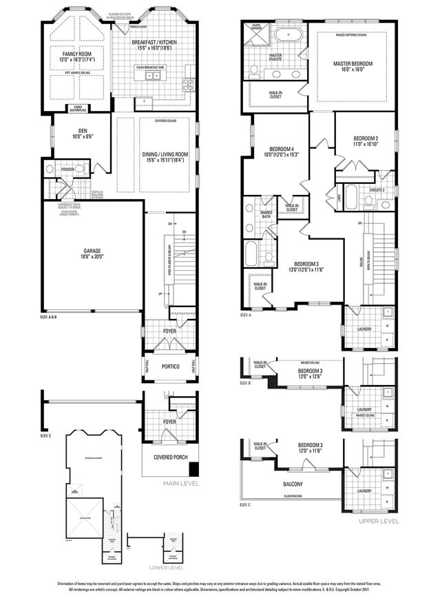
Mapleside Meadows
Rural Vaughan, Vaughan
60-01 Elev. B
40-01 Elev. B
40-07 Elev. B
60-01 Elev. A
40-02 Elev. B
40-02 Elev. B with Loft
40-07 Elev. A
8 new GTA home and condo developments offering virtual tours
With sales centres and model homes now closed because of the COVID-19 pandemic, virtual tours are particularly helpful for those who are currently in the market for a new home.