The Sussex Corner
Highgrove - Townhomes
Cathedraltown, Markham
The Somerset Corner
The Somerset Interior
The Hampton End with Elevator
The Sussex Interior with Elevator - Elev. A
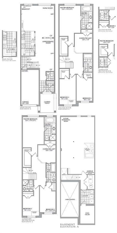
The Hampton Corner
The Hampton End
The Somerset Corner with Elevator