Ambrose C
Victoria Grand by Aspen Ridge - Townhomes
Rural Markham, Markham
Rattray C
Ryan A
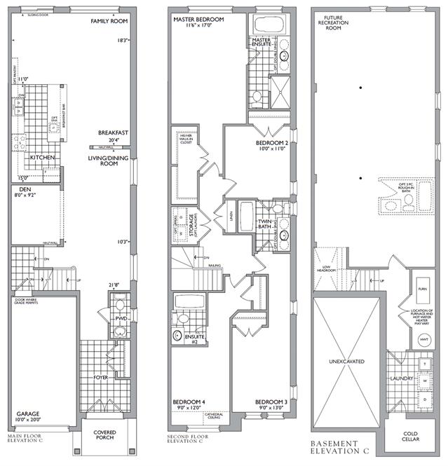
Leblanc C
Shelton C
Ambrose D
Shelton D
Stonehouse D